Offre au prix – Contrat de réservation signé Dernier étage, appartement T3 vue dégagée au cœur du village !
Offre au prix - Contrat de réservation signé
Au cœur de Saint-Martin-de-Hinx, à l’abri de l’agitation tout en restant à deux pas des commerces, découvrez ce dernier appartement disponible au sein d’une résidence confidentielle pensée pour le bien-vivre ensemble.
Ce lieu de vie singulier s’inscrit dans un écrin de verdure, mêlant jardin partagé, terrains de pétanque, espaces arborés et fronton d’origine conservé, offrant une atmosphère paisible et authentique en plein centre-ville. Une résidence de standing à l’esprit intergénérationnel, composée de seulement 17 appartements.
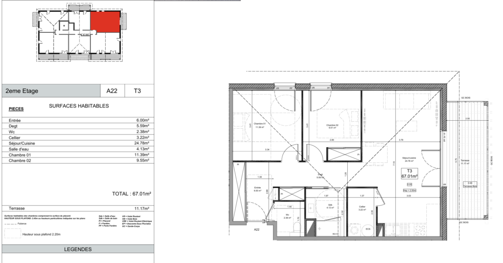
Situé au 2ème et dernier étage, cet appartement de type 3 développe 67,01 m² habitables, prolongé d'une élégante terrasse de 11 m², idéale pour les beaux jours.
L’entrée, dotée de nombreux rangements, dessert un WC indépendant et une belle pièce de vie baignée de lumière grâce à sa double exposition.
La cuisine, ouverte et fonctionnelle, s’accompagne d’un cellier attenant et s’ouvre naturellement sur la terrasse bois avec vue dégagée, véritable prolongement de l’espace intérieur.
L’espace nuit se compose de deux chambres confortables, toutes deux équipées de portes-fenêtres donnant accès à la terrasse, ainsi que d’une salle de bain aux lignes épurées.
La résidence dispose d’un ascenseur, d’une place de stationnement privative extérieure et d’un local vélo commun. Un ensemble intimiste de seulement deux étages, où chaque détail a été pensé pour conjuguer confort, convivialité et douceur de vivre.
L'essentiel
Référence
RED 248
Exposition
Est
Construit en
2027
Intérieur
Surface habitable
67.01
Chambre(s)
2
Pièce(s)
3
Salle(s) de bain
1
Surface terrasse
11.17
Vous voulez estimer votre bien ?
Contactez notre agent immobilier

Richard Calero
+33 5 59 43 87 19
+33 6 58 31 81 63
calero@gmail.immo
richard.calero









